Woningbouw in Hollands Kroon

Op deze pagina informeren wij u over de lopende en toekomstige woningbouwprojecten binnen de gemeente. Wij werken hard aan nieuwe woningen, zowel permanent als tijdelijk, en aan het versnellen van de bouwprocessen om de woningnood in de regio aan te pakken.

Grootschalige Woningbouwprojecten

Hieronder ziet u de grootste nieuwbouwprojecten van de gemeente. Bij ieder project staat korte informatie en u kunt doorklikken voor meer details.

Uitgelichte projecten

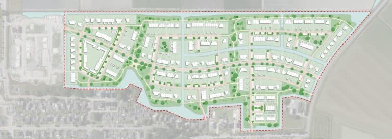
Woningbouw Wieringerwaard-Oost, Wieringerwaard

De gemeente Hollands Kroon zet een belangrijke stap om het woningaanbod in Wieringerwaard te vergroten. Er is een groot tekort aan woningen. Daarom wil de gemeente de bouw van nieuwe woningen versnellen.
Wieringerwaard oost

Woningbouw De Meertuin in Slootdorp

Dinsdag 14 maart 2023 is de oude school in Slootdorp gesloopt. Op die plek moeten in totaal 24 woningen en een praktijk voor fysiotherapie komen.
De Meertuin artist impression

Woningen in Kreileroord

Bijna een jaar nadat de grond aan de Korenstraat in Kreileroord te koop is gezet, zijn de verkoopcontracten op vrijdag 28 juli 2023 getekend.
korenstraat-Kreileroord

Woningbouw Wieringerwaard-Oost, Wieringerwaard

De gemeente Hollands Kroon zet een belangrijke stap om het woningaanbod in Wieringerwaard te vergroten. Er is een groot tekort aan woningen. Daarom wil de gemeente de bouw van nieuwe woningen versnellen.
Wieringerwaard oost

Woningbouw Dorsmolen-Oost, Wieringerwerf

De gemeente Hollands Kroon wil de bouw van nieuwe woningen versnellen. Dit is nodig omdat er een groot tekort aan woningen is. Een van de locaties is een perceel aan de Oosterterpweg, naast de Dorsmolen in Wieringerwerf. Deze grond heeft nu nog een agrarische bestemming, maar het is de bedoeling dat hier huurwoningen worden gerealiseerd voor bijvoorbeeld starters of senioren.
Locatiekaart Dorsmolen

Don Bosco, Wieringerwerf

De Katholieke Basisschool Don Bosco is sinds het schooljaar 2024 – 2025 onderdeel van Kindcentrum De Terp. Het gebouw aan het Terppad 1 in Wieringerwerf staat nu leeg. Daarom zoekt de gemeente een nieuwe invulling. Het plan is om van het oudste deel van de school zoveel mogelijk te bewaren.
Schetsontwerp Don Bosco

Martekrogt, Den Oever

De gemeente Hollands Kroon zet een belangrijke stap om het woningaanbod in Den Oever te vergroten. Er is een groot tekort aan woningen. Daarom wil de gemeente de bouw van nieuwe woningen versnellen.
Locatiekaart Martekrogt

Elshof Zuid in Anna Paulowna

Elshof Zuid is de nieuwste woonbuurt van Anna Paulowna, in het topje van Noord-Holland. De nieuwbouwlocatie ligt aan de zuidwestzijde van Anna Paulowna, tussen het spoor en de Ruysdaallaan. Hoewel het voelt alsof je vrij in de landelijke rust woont, is de wijk uitstekend bereikbaar.
Elshof Zuid Anna Paulowna

Molenhof Wieringerwaard – 19 woningen

De woningen komen rondom een groen speelveld te staan, aan het einde van de Molensingel. Het wordt een rustige buurt met veel groen en weinig auto’s. Met deze 19 woningen komt het totaal aantal woningen in de wijk De Hoop op 157. De naam verwijst naar de molen De Hoop die aan de Molenweg staat.
Molensingel in Wieringerwaard, tekening van toekomstige rij woningen op Molenhof

Woningbouw Oosterterpweg, Wieringerwerf

Op 17 juli 2024 hebben de gemeente Hollands Kroon en het Rijksvastgoedbedrijf een samenwerkingsovereenkomst getekend voor de ontwikkeling van drie percelen aan de Oosterterpweg in Wieringerwerf. Deze locatie biedt ruimte voor de bouw van diverse huur- en koopwoningen, variërend van betaalbare tot duurdere woningen, om in te spelen op de groeiende vraag naar huizen in de regio.
overzichtsfoto van bovenaf Oosterterpweg, Wieringerwerf

Wonen in Lelypark, Wieringerwerf

Wat ooit een braakliggend stuk land was met slechts een aantal woningen, is nu in volle ontwikkeling als een aantrekkelijke, nieuwe woonwijk: Lelypark in Wieringerwerf. De wijk wordt vormgegeven door verschillende woningtypes en een groen karakter, dat de bestaande woonbuurten en deze nieuwe ontwikkelingen met elkaar verbindt.
Lelypark Wieringerwerf, tekening Hans Been architecten BNA

Polderpark Anna Paulowna

Aan het Kruiszwin, naast de Poldertuin, komen 31 sociale huurwoningen en 10 bouwkavels. Tussen de twee appartementengebouwen die Woningstichting Anna Paulowna nu bouwt aan de Molenvaart komt de toegangsweg naar de nieuwe buurt. In het Polderpark komt een hofje met 10 vrije bouwkavels en 2 hofjes met in totaal 31 huurwoningen.
Bovenaanzicht Polderpark

Dahlia Park in Winkel

Aan de rand van Winkel wordt nieuwbouwwijk Dahlia Park gebouwd. Tussen de Trambaan, Dorpsstraat en Nieuwe Niedorperweg in Winkel komen ongeveer 200 nieuwe woningen. Het totale plan heeft verschillende fases en de woningen zijn er in diverse verkoopprijzen. Ongeveer 25 procent van de wijk is gereserveerd voor sociale woningbouw.
Zo wordt het dahliapark in Winkel

Woningen in Kreileroord

Bijna een jaar nadat de grond aan de Korenstraat in Kreileroord te koop is gezet, zijn de verkoopcontracten op vrijdag 28 juli 2023 getekend.
korenstraat-Kreileroord

Woningbouw De Meertuin in Slootdorp

Dinsdag 14 maart 2023 is de oude school in Slootdorp gesloopt. Op die plek moeten in totaal 24 woningen en een praktijk voor fysiotherapie komen.
De Meertuin artist impression

Woningbouw ’t Veld Noord

In 2018 heeft de gemeenteraad het bestemmingsplan ’t Veld Noord vastgesteld. Hierdoor kon worden gestart met woningbouw. De projectontwikkelaar Bot…
t Veld Noord

Wat doet de gemeente om de woningbouw te versnellen?

In Hollands Kroon is er veel behoefte aan nieuwe woningen. Starters, gezinnen, ouderen en mensen die snel een huis nodig hebben, wachten op een plek om te wonen. Daarom wil de gemeente de bouw van woningen versnellen. De gemeenteraad heeft dit vastgelegd in de motie Versnellen Woningbouw en in de Woondeal 2023 zijn regionale afspraken gemaakt.

Versnellen betekent dat we als gemeente sneller grond aankopen, goed samenwerken met woningcorporaties en bouwbedrijven en ook kijken naar slimme oplossingen. De gemeente zorgt ervoor dat projecten goed op elkaar aansluiten en dat er sneller gebouwd kan worden. Zo helpen we inwoners eerder aan een passende en betaalbare woning. Tegelijk bouwen we aan fijne dorpen en wijken, met voorzieningen, groen en een sterke gemeenschap.

Hier vindt u de belangrijkste documenten en afspraken rondom wonen in Hollands Kroon. U kunt de documenten hieronder bekijken of downloaden als PDF.

Woonbehoefteonderzoek
In dit onderzoek staat welke woningen Hollands Kroon tot 2033 nodig heeft en waar die het beste kunnen komen. Er is aandacht voor betaalbaar wonen, zorgwoningen en het verbeteren van bestaande buurten. Het rapport helpt de gemeente om keuzes te maken en plannen te maken voor alle dorpen.

Uitvoeringsagenda wonen
De Uitvoeringsagenda Wonen laat zien hoe Hollands Kroon de woonvisie uitvoert. In dit plan staan acties en afspraken om genoeg en betaalbare woningen te realiseren in een fijne en duurzame leefomgeving. De agenda richt zich op vier thema’s: beschikbaarheid, betaalbaarheid, duurzaamheid en wonen met zorg en welzijn. Dit document is de vertaling van de woonvisie naar een uitvoeringsagenda wonen.

Betaalbare Huurwoningen – Afspraken in Hollands Kroon:

De Jaarschijf 2025
De Jaarschijf 2025 is onderdeel van de prestatieafspraken tussen de gemeente, woningcorporaties en huurdersorganisaties. Het document gaat vooral over de sociale huursector en bevat afspraken en projecten voor 2025 rond betaalbaar en duurzaam huren, zorg en leefbaarheid.

Prestatieafspraken
De Prestatieafspraken 2022–2026 zijn gemaakt tussen de gemeente, woningcorporaties en huurdersorganisaties. Het document gaat vooral over de sociale huursector en legt vast hoe partijen samenwerken aan genoeg en betaalbare huurwoningen, duurzaamheid, zorg en leefbare wijken. Deze afspraken vormen de basis voor de jaarlijkse jaarschijven met duidelijke acties.

Dashboard woningbouw

Veelgestelde vragen over woningbouw

Inschrijven voor een nieuwbouwwoning kan doorgaans via de projectontwikkelaar, een makelaar, of een woningcorporatie die het project beheert. De gemeente publiceert regelmatig updates over woningbouwprojecten en verwijst naar de juiste contactpunten. Houd onze website in de gaten voor inschrijfmomenten en relevante links.

Ja, in Hollands Kroon is het mogelijk om een starterslening aan te vragen. Meer informatie over de starterslening.

De verdeling van woningen verschilt per project en wordt vaak bepaald door de ontwikkelaar of woningcorporatie. Voor sociale huurwoningen geldt meestal een wachttijd of urgentiesysteem via een woningcorporatie. Bij koopwoningen wordt soms gebruik gemaakt van loting, zeker als er veel animo is. Specifieke details vind je in de informatie van het betreffende project.

Ja, inwoners kunnen vaak inspraak hebben tijdens de planontwikkeling. Dit gebeurt via informatieavonden, inspraakprocedures en participatiebijeenkomsten. We publiceren uitnodigingen en documenten op onze website.

Duurzaamheid speelt een belangrijke rol in alle woningbouwprojecten. Denk aan energiezuinige bouwmethoden, het gebruik van duurzame materialen, en het toepassen van groene energieoplossingen zoals zonnepanelen en warmtepompen. Ook wordt gekeken naar watermanagement en behoud van biodiversiteit.

De gemeente streeft naar een balans tussen woningbouw en natuurbehoud. Bij nieuwe projecten wordt zorgvuldig gekeken naar het behoud van bestaande natuur en worden vaak compensatiemaatregelen genomen, zoals nieuwe groenvoorzieningen of ecologische zones.

We streven ernaar om woningen te bouwen die betaalbaar zijn voor verschillende doelgroepen. Dit betekent dat een deel van de woningen binnen de sociale huur valt, terwijl er ook betaalbare koopopties worden aangeboden. De exacte prijzen verschillen per project en worden gepubliceerd zodra deze bekend zijn.

Ja, de gemeente hecht veel waarde aan het bouwen van woningen die aansluiten bij de behoeften van specifieke doelgroepen. Er worden projecten ontwikkeld voor starters, senioren, gezinnen, en andere groepen met specifieke woonwensen.

Woningbouwprojecten vergen vaak veel voorbereiding. Er moeten bestemmingsplannen worden aangepast, vergunningen worden verleend, en omwonenden worden gehoord. Ook zaken als archeologisch onderzoek of milieueisen kunnen extra tijd kosten. De gemeente werkt er hard aan om dit proces te versnellen waar mogelijk.

Voor vragen over specifieke projecten kun je terecht bij de projectontwikkelaar of de contactpersoon binnen de gemeente. Op onze website staat een overzicht van lopende projecten en bijbehorende contactinformatie.

Algemene vragen over de woningbouwopgave en beleid kunnen gesteld worden aan wonen@hollandskroon.nl.

Zie ook

Beleidsregels premantelzorg- en tijdelijke generatiewoningen

Premantelzorgwoningen zijn tijdelijke woonvoorzieningen bij een hoofdwoning, bedoeld om toekomstige zorgbehoeften vroegtijdig op te vangen. Tijdelijke generatiewoningen zijn woonvoorzieningen voor familieleden in de eerste of tweede graad, die tijdelijk bij de hoofdwoning kunnen wonen.
Een oudere man en vrouw met een houten huisje in hun handen.

Nieuwsberichten woningbouw

Denk mee over de toekomst van Nieuwe Niedorp en Winkel

De inloopbijeenkomst van 5 november 2025 in het dorpshuis Prins Maurits over de dorpsvisie, is met ruim 200 bezoekers zeer goed bezocht. Daarmee is de tweede ronde van de dorpsvisie officieel van start.
Bijeenkomst over de dorpsvisie Nieuwe Niedorp en Winkel was goed bezocht

Denk mee over de toekomst van Hippolytushoef

De tweede ronde van de dorpsvisie voor Hippolytushoef is gestart! Maandag 3 november 2025 was de startbijeenkomst in Sportcentrum Wieringen. Daar zijn de denkrichtingen gepresenteerd aan ruim 30 deelnemers. De afgelopen maanden is hard gewerkt aan de twee mogelijke denkrichtingen voor de toekomst van het dorp. Deze laten zien hoe Hippolytushoef zich de komende tien jaar kan ontwikkelen.
Startbijeenkomst Dorpsvisie Hippolytushoef 3 november 2025

Inloopavond Woningbouw Wieringerwaard-Oost en Het Wapen van Wieringerwaard

In Wieringerwaard deed zich de kans voor om het weiland ten oosten van het sportcomplex van S.V. Wieringerwaard te kopen. In juli 2025 heeft de gemeenteraad budget beschikbaar gesteld voor de aankoop van deze grond. Voor de volgende stap start de gemeente met het opstellen van een ontwerp.
Woningbouw-Wieringerwaard-oost-in-Wieringerwaard

Nieuwe bestemming voor basisschool de Triangel  

Basisschool de Triangel is sinds september 2024 verhuisd naar Campus de Terp. Het oude schoolgebouw aan de Terpstraat 42 in Wieringerwerf krijgt daarom een nieuwe maatschappelijke functie. Wij willen het pand gaan verkopen aan een ontwikkelaar die er een eerstelijnszorgverblijf van gaat maken.
voormalig schoolgebouw van de Triangel

Nieuwe woningen op plek van oude Don Bosco-school Wieringerwerf

In Nederland is er een groot tekort aan woningen. Ook in de gemeente Hollands Kroon. De gemeente wil tot en met 2030 in totaal 3.200 woningen bouwen. De oude Don Bosco-school in Wieringerwerf kan hieraan bijdragen.
Don Bosco school in Wieringerwerf

Intentieovereenkomst voor ontwikkeling ZAP-terrein

De gemeente Hollands Kroon en de ontwikkelcombinatie Werbouw en Kuin hebben een overeenkomst getekend. Ze spreken hiermee uit dat ze samen woningen willen ontwikkelen op het voormalige ZAP-terrein in Van Ewijcksluis.
Schetsafbeelding ZAP terrein van Ewijcksluis

Feestelijk moment voor 24 nieuwe woningen in Anna Paulowna

In Anna Paulowna is stilgestaan bij de succesvolle afronding van een woningbouwproject met 24 nieuwe sociale huurwoningen aan de Burg. Mijnlieffstraat en de Sportlaan. Het gaat om 24 levensloopbestendige woningen. Daarmee is er meer passende woonruimte gecreëerd voor jong en oud in het dorp.
Feestelijk moment woningen in Anna Paulowna

Woningbouwontwikkeling Martekrogt in Den Oever

De gemeente Hollands Kroon wil de woningbouw versnellen vanwege het grote tekort aan woningen. Eén van de beoogde locaties is de hoek van de Martekrogt en de Molgerweg in Den Oever.
Locatiekaart Martekrogt Den Oever

Voorbereiding bouw 19 woningen in Wieringerwaard

In Wieringerwaard wordt de grond voorbereid voor de nieuwe woonwijk Molenhof. Er wordt eerst een laag grond neergelegd. Dit zorgt voor een stevige bodem om later de woningen en straten op te bouwen.
Voorbereiding Molenhof Wieringerwaard - drone shot van bovenaf van de werkzaamheden. Het is een grote bouwput met een kiepwagen en graafmachine die grond verzetten. Links zie je reeds bestaande woningen, boven een strook gras met een riviertje en recht bomen en een deel van de tennisbaan.

Nieuwe buren ontmoetten elkaar op bouwplaats ’t Veld

Nieuwe toekomstige bewoners ontmoetten elkaar in ’t Veld bij woningbouwproject ’t Veld fase 2. In totaal 57 woningen waarvan de oplevering is in 2026.
Nieuwe buren ontmoetten elkaar op de bouwplaats in 't Veld. Wethouder Mark Versteeg spreekt de aanwezigen toe voor een van de woningen in aanbouw.

Eerste paal geslagen voor fase 2 van nieuwbouwwijk in Winkel

Onder grote belangstelling is donderdag 26 juni 2025 de eerste paal geslagen voor fase 2 van de nieuwbouwwijk Dahlia Park in Winkel. Wethouder Mark Versteeg gaf het officiële startsein voor de bouw van deze nieuwe fase waarmee opnieuw een belangrijke stap wordt gezet in de woningbouwambitie van de gemeente Hollands Kroon.
Eerste paal fase 2 - Dahliapark Winkel. Groepsfoto van de aanwezigen voor de eerste paal.

Nieuwe locaties voor versnelling woningbouw in Hollands Kroon

Het college van burgemeester en wethouders van Hollands Kroon heeft drie locaties aangewezen waar versneld woningen kunnen worden gerealiseerd. Deze stap maakt deel uit van de bredere ambitie om 500 extra woningen te bouwen, in lijn met een eerder aangenomen motie van de gemeenteraad.
Foto Woningen

Hollands Kroon zet stap naar duurzame woningbouw met ondertekening convenant

De gemeente Hollands Kroon heeft het Convenant Toekomstbestendige Woningbouw van de Metropoolregio Amsterdam (MRA) ondertekend. Hiermee zet de gemeente een belangrijke stap om haar duurzame ambities waar te maken.
Ondertekening convenant - Mark Versteeg en René Dijkstra schudden elkaar de hand